02/16(三) 晚上19:00-20:00 –(實體課程) -室內雙乙級講座
當天會請一位考上12500證照的學姐分享,
上課到考到證照的心路歷程,上課練習作品解析
目前學姊已找到相關室內設計工作,當天也會做分享!
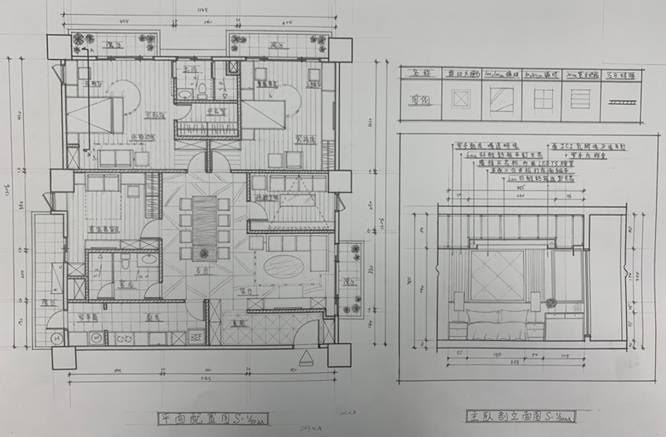
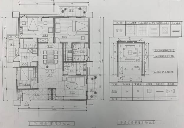
提供以下學姐的作品!
從0到有可以完整畫出所有考照的題目作品




-
室內設計在現今社會中非常普遍,
上網隨便搜尋都會出現數十、數百間的室內設計公司或工作室,
常讓消費者看了眼花撩亂不知道該從何選擇。
-
其實想要成為厲害的室內設計師或公司並不是那麼容易的,
至少要擁有一張「證照 (裝修工程管理乙級證照)」才能執業,
它們分別是:裝修工程管理乙級證照和室內設計乙級證照。
你知道兩者有什麼不同,以及為什麼需要這些證照嗎?
-
裝修工程管理乙級證照是什麼?
裝修工程管理乙級證照是一個針對「室內設計公司」的證照,也就是說唯有考取這張證照才能合法執業。考試項目分成學科與術科兩種,內容大致有:室內設計工法與法規、建築與室內設計專業知識與法規、估價與施工等等。因為不需要進行「設計」,所以對於多數人來說是比較好入門的一張證照。
那麼考取裝修工程管理乙級證照有哪些好處呢?
- 成立合法的室內裝修公司可以進行任何室內設計工程,也可以協助業主申請「建築物室內裝修合格證」。
- 可以標公家機關的案件如果想要投公家機關的案子,一定要具備「室內裝修業登記證」和「施工技術人員登記證」才能參與投標,換句話說如果只有室內設計乙級證照是不行的。
- 所有室內設計師不能做到的事除了上述這兩個項目之外,室內設計師其實只能針對空間進行設計,但其他施工或監工等事情都不能做。

▲擁有裝修工程管理乙級證照可以成立合法室內裝修公司
室內設計乙級證照又是什麼?
至於室內設計乙級證照則是以「設計師」的角度為主,考試內容同樣分成學科與術科,學科是一般的選擇題,而術科則是要考繪製設計圖的技巧。因此如果你沒有相關繪圖技能(手繪、技法、速度、審美等),考室內設計乙級證照會非常痛苦。
考取室內設計乙級證照的好處就是可以案業主需求設計並繪製出所有圖面,包含平面圖、空間示意圖、施工圖、3D圖面等,跟建築師的功用差不多。在繪製完這些圖面並經過業主確認後,室內裝修工程人員就會依室內設計師的設計進行發包、施工及監工,確保工程能如期完工。

▲考取室內設計乙級證照需要強大的手繪、技法、審美等技能
同樣都是乙級證照,兩者的差別到底在哪?
根據上面的內容,我們大致可以發現兩者同樣都是室內設計領域不可或缺的乙級證照,但差異性還是蠻大的。
最簡單的分辨方法就是:裝修工程管理乙級證照是針對「公司」,並且要有這張證照才能進行施工;室內設計乙級證照則是針對「人」,有這張執照可以進行設計與繪圖,但是無法施工。
因此大家下次在找室內設計公司時,一定要確認該公司是否有「裝修工程管理乙級證照」,如果只是一般設計師的話,他可能就只能幫你規劃設計,但不能幫你進行後段的施工喔!

▲要記得裝潢施工一定要認清楚對方有「裝修工程管理乙級證照」



